Interventions

Equipement sportifs/loisirs

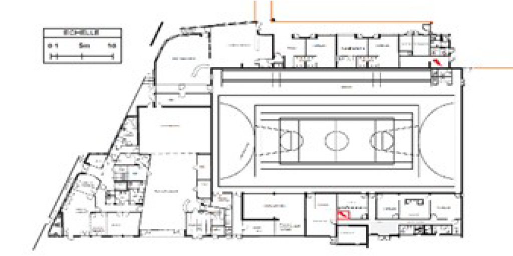
CUGNAUX – 31

Rénovation du Gymnase Jean Bouin

Maître
d’ouvrage:

Mairie de Cugnaux

Maître
d’œuvre:

TOCRAULT & DUPUY / EBM / SATEC INGENIERIE / SEPT / EMACOUSTIC

Surface:

Bâtiment: 1462 m², Espaces extérieurs: 1200 m²

Montant travaux: 1695 K€

Mission :

Dans le cadre de la rénovation du gymnase Jean Bouin, le bureau d’études a accompagné le projet sur les lots techniques liés aux installations électriques, aux systèmes CVC, à la plomberie sanitaire et aux études thermiques. La mission a consisté à adapter les équipements existants aux usages du gymnase, à améliorer le confort des usagers et à optimiser les performances énergétiques du bâtiment, tout en veillant au respect des normes et des contraintes propres à ce type d’équipement sportif.

LA TOUR DU CRIEU – 09

Création d’une Plaine des Sports
et d’une salle multi-activités
Vestiaires – Club House – Tribunes

Maître
d’ouvrage:

Mairie de La Tour du Crieu

Maître
d’œuvre:

C+C / JR INGENIERIE / SATEC INGENIERIE / SERI 66

Surfaces:

Salle :
425 m²
Club House/vestiaires :
318 m²

Montant total:

1 615 K€

Mission :

Dans le cadre de la création d’une plaine des sports et d’une salle multi-activités comprenant vestiaires, club house et tribunes, le bureau d’études est intervenu au titre d’une mission de base relevant de la loi MOP. La mission a porté sur la conception des installations techniques du projet, en coordination avec l’équipe de maîtrise d’œuvre. Les études ont visé à proposer des équipements adaptés aux usages sportifs, fonctionnels et conformes aux exigences réglementaires applicables aux équipements recevant du public.

SAINT-JEAN – 31

Réaménagement et rénovation du site Alex Jany

Maître
d’ouvrage:

Mairie de Saint-Jean

Maître
d’œuvre:

Nook Architecte / SATEC / Alayrac

Surface:

3220 m²

Montant travaux:
1 825 K€

Mission :

Dans le cadre du réaménagement et de la rénovation du site Alex Jany, le bureau d’études est intervenu dans le cadre d’une mission de base relevant de la loi MOP. Le projet comprenait la création d’espaces dédiés aux musiques, de bureaux, d’une salle de convivialité et d’une salle d’escalade, ainsi qu’une seconde phase intégrant un gymnase, des vestiaires et une extension. La mission a porté sur la conception des installations techniques, en lien avec les usages variés du site et les exigences réglementaires.

FOIX – 09

Construction de vestiaires et tribunes pour le Football Club de Foix

Maître
d’ouvrage:

Ville de Foix

Maître
d’œuvre:

Marty Puyol Architectes / SATEC / GCIS / CBIT

Surfaces:

Vestiaires :
274 m²
Tribunes :
406 places

Montant total:

575 K€

Mission :

Pour la construction de vestiaires et de tribunes au service du Football Club de Foix (projet lié au complexe sportif Jean-Surre comprenant de nouveaux vestiaires et tribunes couvertes d’environ 400 places assises) , le bureau d’études a assuré une mission de base complétée par un suivi partiel d’exécution. Les prestations ont couvert les installations électriques en courants forts et courants faibles, les systèmes CVC, la plomberie sanitaire et une étude photovoltaïque visant à optimiser l’intégration d’énergies renouvelables. L’objectif était de proposer des solutions techniques adaptées aux usages sportifs et aux exigences réglementaires.

Retour en haut